|
|
Andrade Morettin, Escuela FDE en Campinas (SP)
|
|
|
UNA arquitetos, Escuela FDE en Campinas (SP)
|
Continuando con el programa de construcciones escolares llevado a cabo por la Fundación para el Desarrollo de la Educación (FDE), dependiente de la Secretaría de Educación del Estado de São Paolo (Brasil), y en su primera fase que se desarrolló hasta el 2004, de las propuestas ejecutadas destacan, junto con las anteriormente indicadas de los arquitectos Puntoni y Bucci, dos escuelas realizadas, ambas, en la zona de Campinas (SP) por los equipos paulistas: Andrade & Morettin y UNA arquitetos.
 |
|
Andrade Morettin, Escuela FDE en Campinas (SP), plantas
|
Vinicius Andrade y Marcelo H. Morettin forman un sólido equipo desde 1992 y su trayectoria ha sido objeto de numerosas referencias en distintas publicaciones especializadas tanto latinoamericanas como europeas. En el 2003 trabajan en un proyecto escolar para el programa FDE en Campinas, cuya ejecución se completa en el 2004. Andrade y Morettin desarrollan una propuesta que integra todo el programa docente dentro de un gran pabellón rectangular, perfectamente definido por la estricta modulación impuesta por el sistema prefabricado. Un prisma de planta rectangular (43,20 x 36 m) resuelto con cinco vanos estructurales de 7,20 x 10,80 m, en el que se apilan, en vertical, tanto las aulas como la propia pista deportiva, dispuesta en el primer nivel del edificio y que adquiere, como en los ejemplos anteriores, el carácter de una plaza cubierta que articula espacialmente la propuesta.
 |
Andrade Morettin, Escuela FDE en Campinas (SP), sección y vistas
|
Como contrapunto a esta imagen unitaria, las circulaciones del centro presentan una gran fluidez, como se aprecia en la escultórica rampa de acceso a la zona de la pista y que tiene su continuidad, ya dentro del edificio, con la calle interior que conecta las circulaciones verticales del colegio. Según los propios autores, la imagen del edificio resuelta con cerramientos metálicos industrializados es coherente con el sistema prefabricado utilizado; de ahí que el lenguaje fabril empleado haya surgido, casi, de manera natural.


 |
Andrade Morettin, Escuela FDE en Campinas (SP), vistas y detalles de los cerramiento
|
-------------------------------------------------------------------------------------------------------------------------------------------------------------
 |
UNA arquitetos, Escuela FDE, sección
|
UNA arquitetos, equipo compuesto por: Cristiane Muniz, Fábio Valentin, Fernanda Barbara y Fernando Felippe Viégas, asociados desde 1996, realizaron, en la misma fecha que el equipo anterior, una escuela también en la zona de Campinas. UNA arquitetos, al igual que Andrade y Morettin, desarrollan un volumen unitario que acoge todo el programa docente; si bien, en este caso, y dada la estrechez e irregularidad de la parcela, los autores llevan al límite el apilamiento de las funciones, con la disposición de la pista deportiva en la última planta del centro; en una posición que coronará visual y espacialmente el colegio.
 |
UNA arquitetos, Escuela FDE, planta baja
|
 |
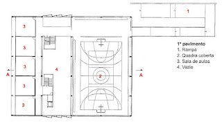
UNA arquitetos, Escuela FDE, plantas 1ª y 2ª
|
|
|
UNA arquitetos, Escuela FDE, planta 3ª pista
|
La organización en planta se resuelve mediante un corredor central articulado con las escaleras dispuestas en los extremos. Es precisamente en estos puntos de la planta, los testeros, en los que los autores introducen ciertos mecanismos de discontinuidad con el objeto de fracturar visualmente el prisma mediante las dos grandes hendiduras que alojan las escaleras abiertas del centro. La alegoría moderna de la fábrica se muestra aquí con todas sus consecuencias, al disponer, de manera autónoma, los prismas correspondientes al ascensor y las chimeneas de ventilación como si se tratasen de silos industriales.
 |
UNA arquitetos, Escuela FDE en Campinas (SP), vistas
|
Como en el caso anterior, la imagen del edificio se expresa de manera congruente con el sistema semi-industrializado empleado en la estructura del centro. Se recurre a las chapas grecadas en los testeros, y a paneles de lamas de PVC en los frentes de las aulas dispuestos, en estos casos, como brise soleils que durante la noche, con la iluminación interior atravesándolos, convierten al centro en un enorme fanal, que actúa como referencia en un entorno caracterizado por la uniformidad de los conjuntos residenciales.
 |
UNA arquitetos, Escuela FDE en Campinas (SP), vistas de las fachadas
|
+Fotógrafo para ambos equipos: Nelson Kon